常见检测标准
ASTM D4169(医疗医药)
GB/T 14710(医械环境)
GB/T 4857(基本试验)
ISTA 3E(集合包装)
ISTA 6A(电商专用)
ISTA 3A(单包裹件)
ISTA 2A(卖方标准件)
其它检测标准
常见测试项目
加速老化试验
振动/震动测试
跌落/摔箱测试
环境可靠性试验
斜面/角冲击实验
高海波低气压试验
抗压(堆码)测试
夹持(夹抱)测试
包装材料 包材检测
其他(项目)测试
行业应用
电商-行业
医械及医药
国防装备专用
家具及家居用品
汽车配件/新能源
家电及电子消费品
其它行业应用
座机:400-181-0026
电话:0512-88830151
手机:18018198853
邮件:fggyjc07@yeah.net
网站:http://www.fts-lab.com
地址:苏州市吴中经济开发区南官渡路9号5#-3
GB/T 4996 顶铺板边缘冲击试验要点
一、适用范围与目的
适用对象:平托盘(含木、塑、复合等材质),用于评估托盘在作业过程中因叉车侧向冲击导致的顶铺板边缘损伤与变形响应。
试验目的:检验顶铺板边缘在侧向水平冲击条件下的抗冲击能力与结构完整性,为托盘设计、选型与验收提供依据。本试验的核心目的在于精确评估顶铺板边缘在遭遇叉车货叉侧向水平冲击时的抗冲击性能。这一试验对于了解顶铺板在实际使用过程中,尤其是在仓储和物流环境中,面对侧向冲击力时的可靠性与耐用性至关重要。通过模拟真实情况下的冲击情形,可以为顶铺板的设计优化、材料选择以及结构改进提供科学依据,确保其在各种实际应用场景中的安全性与稳定性。
标准状态:现行版为GB/T 4996-2025《平托盘 试验方法》(代替2014版),与GB/T 4995《平托盘 性能要求与试验选择》配套使用;新版对试验细节(如撞击点位置、载荷位置等)作了优化与明确.
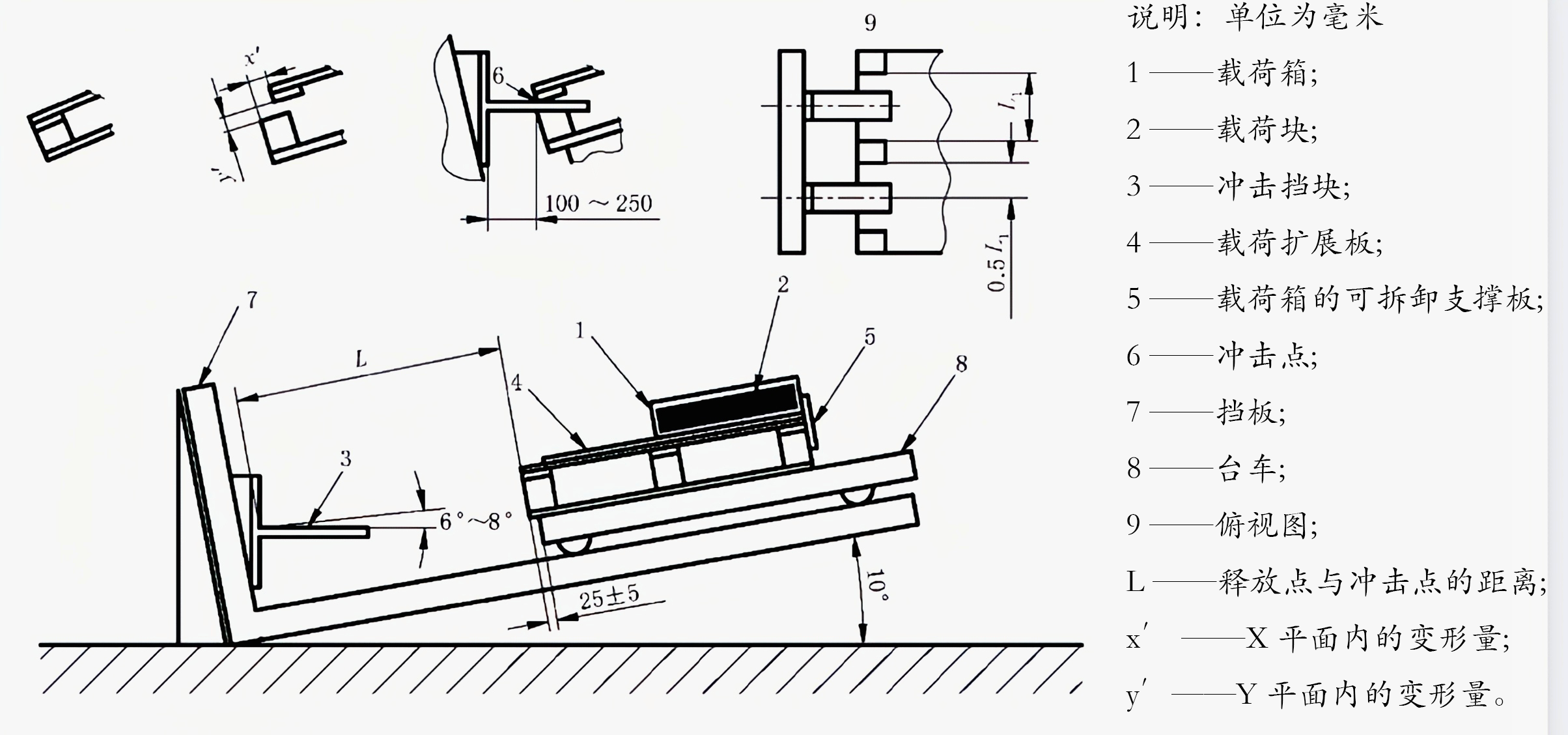
二、试验装置与试样
试验装置:
斜面冲击试验机(台车、轨道、释放机构)。
专用冲击挡块(见图):由挡块柄、叉板及过渡圆弧组成,用于形成标准化冲击工况。
加载头与加载点C:用于施加试验载荷F(见示意关系)。
三、试验步骤与参数
试验需在如图所示的斜面试验机上进行,并使用特制的冲击挡块。在准备阶段,务必将冲击挡块精准地置于托盘纵梁或垫块的中点位置。同时,要仔细调整其高度,确保托盘前缘能够与冲击挡块叉板止动面发生碰撞,且撞击点距离冲击挡块竖直端面的距离严格控制在100mm至250mm之间。
值得注意的是,每次试验的撞击点都应精准地落在此规定区域内,以保证试验的一致性和可对比性。将载荷块小心地放入尺寸为(600±50)mmx(800±50)mm的载荷箱内。
接着,使用与待测托盘铺板长度相等的可拆卸支撑板,将载荷箱与载荷扩展板稳妥地放置在托盘顶铺板的右侧。在此过程中,必须确保试验载荷均匀地分布在距托盘左侧端面100mm以外的顶铺板右侧表面上,同时,载荷中心要精确地位于下行运动轨道的中心线上。试验载荷由载荷块、载荷箱和载荷扩展板共同构成,特别注意的是,试验载荷不应包括台车的重量。
注:载荷扩展板通常由厚度为18mm至25mm的高强度胶合板精心制成,其主要作用在于分散载荷,从而有效地使托盘损坏集中发生在撞击点处。对于纸托盘试验来说,通常需要使用载荷扩展板以达到理想的试验效果。在一切准备就绪后,将带有试验载荷的托盘小心翼翼地置于斜面冲击试验机台车上。
在此过程中,要确保当托盘的前缘碰撞冲击挡块时,台车与冲击挡块之间保持25mm±5mm的距离。如图所示,将托盘和台车沿斜面向上平稳提升至距离冲击挡块竖直端面L的位置,随后,在确保安全的前提下,迅速释放。
释放后,需密切观察并详细记录托盘在X和Y平面的变形量(x和y'),同时,准确记录冲击挡块叉板刺入托盘的深度以及撞击点处的损坏情况。
这些数据对于后续的分析与评估至关重要。按照GB/T4995一2014第10章明确规定的试验次数,严格重复上述步骤。
在此基础上,为了全面考察顶铺板的抗冲击性能,还需以同样的试验步骤沿托盘另一方向的水平轴线进行试验。这样的多角度测试能够更全面地揭示顶铺板在不同冲击条件下的表现,为进一步的优化和改进提供更加丰富的数据支持。
四、关键变化
关键变化(相较于2014版):
对“顶铺板边缘冲击试验”的撞击点位置要求作出调整,强调撞击区域的标准化,提升不同设备与实验室间的可重复性。
明确载荷位置与测量点布置要求,并完善试验报告信息项(如冲击距离、试验载荷、冲击次数)。
重要性及结论GB/T4996顶铺板边缘冲击试验评估托盘安全性具有重要意义。模拟叉车货叉侧向冲击,测试顶铺板抗破坏能力,确保正常使用不损坏,保障货物安全运输。试验结论为设计与制造提供参考,改进结构,提高抗冲击性能,延长使用寿命,减少货物损失,提升物流效率。详询了解请咨询:
本文上部配图说明:18018198853.
1、富港检测站内图片为富港包装实验室实地拍摄(本图有版权,请勿盗图)!
2、一组包装测试程序由多个试验项目组成,因空间有限,本文上部配图仅列举其中一个测试设备或一个场景图片作为代表供您了解使用,请见谅,如需更多信息,请与我司包装测试顾问联系!感谢您的来访与支持!
转载请注明出处:富港检测www.fts-lab.com(托盘检测标准)
包装厂模拟运输验证案例
ASTM D4169-23
冷包装时效性验证
GB/T 11287
GB/T 36911-20
ISO 8318:2000
JIS Z 0232:20
滚动试验